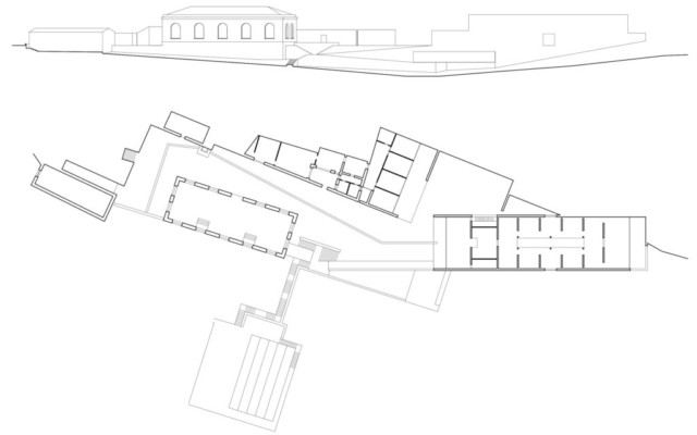
Wettbewerb Erweiterung Museum Costantino Nivola | Orani 2007
Das Wettbewerbsprojekt beabsichtigt vor Allem die Konsolidierung eines bereits bestehenden Ortes. Das Volumen des neuen Museums, der Saal mit den Werken aus Marmor und Bronze und die Diensträume sind um eine panoramische Terrasse angeordnet, die den Abschluss der talseitigen Bebauung des Quartiers von San Lorenzo darstellt. Der Vorschlag bestätigt die jetzige Organisation mit einzelnen Ausstellungspavillions, wo die Verbindungen zwischen den einzelnen Baukörper durch einen Park stattfindet.




